Vårt husprojekt

Bilder på huset

Föregående Nästa Mindre Större


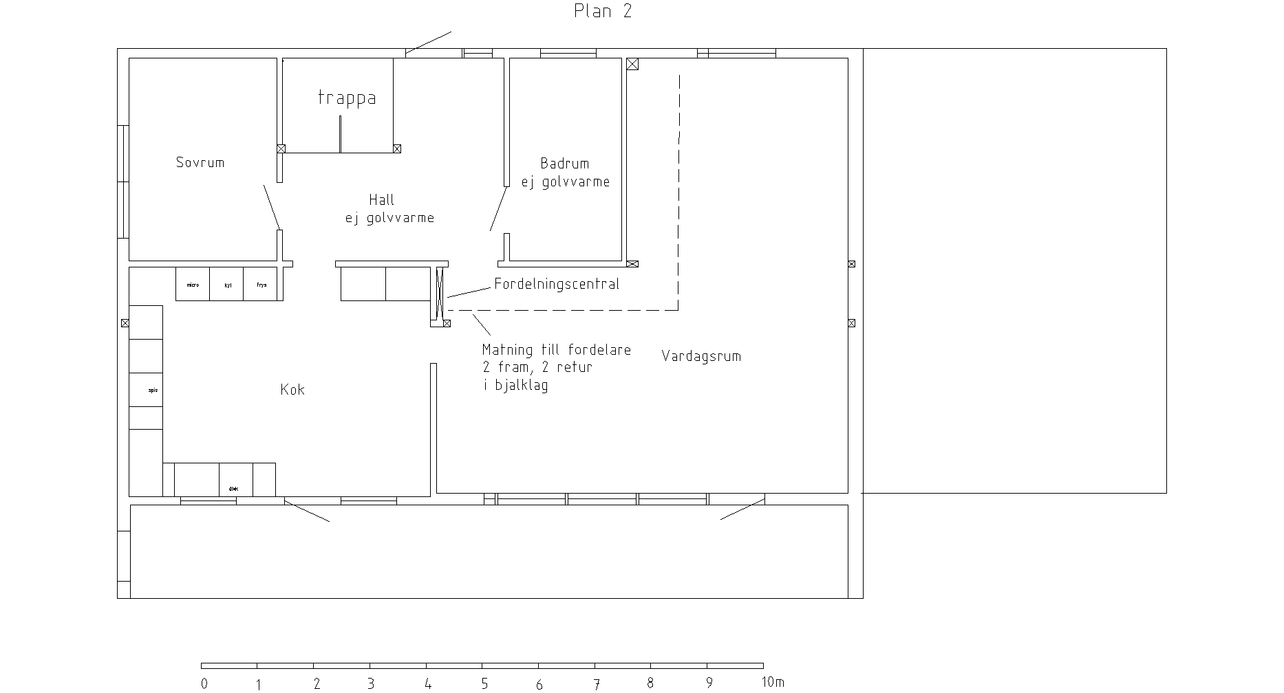
2009:04:27 21:28:54, Plan2 efter ombyggnaden. Vi planerar att dra fram värmen med rör-i-rör liggande i bjälklaget.