Vårt husprojekt

Bilder på huset

Föregående Nästa Mindre Större


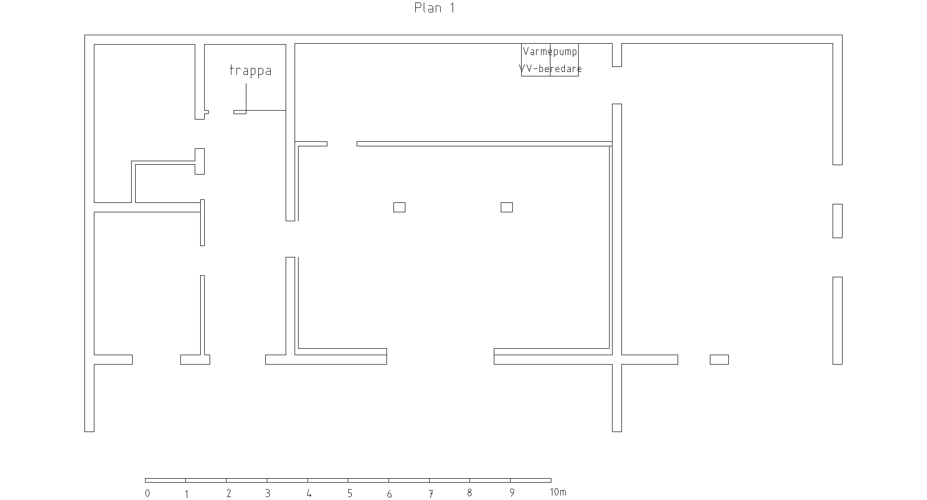
2009:04:27 21:29:21, Planritning plan1, med planerad placering för värmepump och varmvattenberedare.